Дом из контейнеров (58 м кв)
-
Готовый дом БЕЗ СТРОЙКИ и головной боли.
Уже с со всеми коммуникациями, отделкой и качественной мебелью.
Формат въезжай и живи!
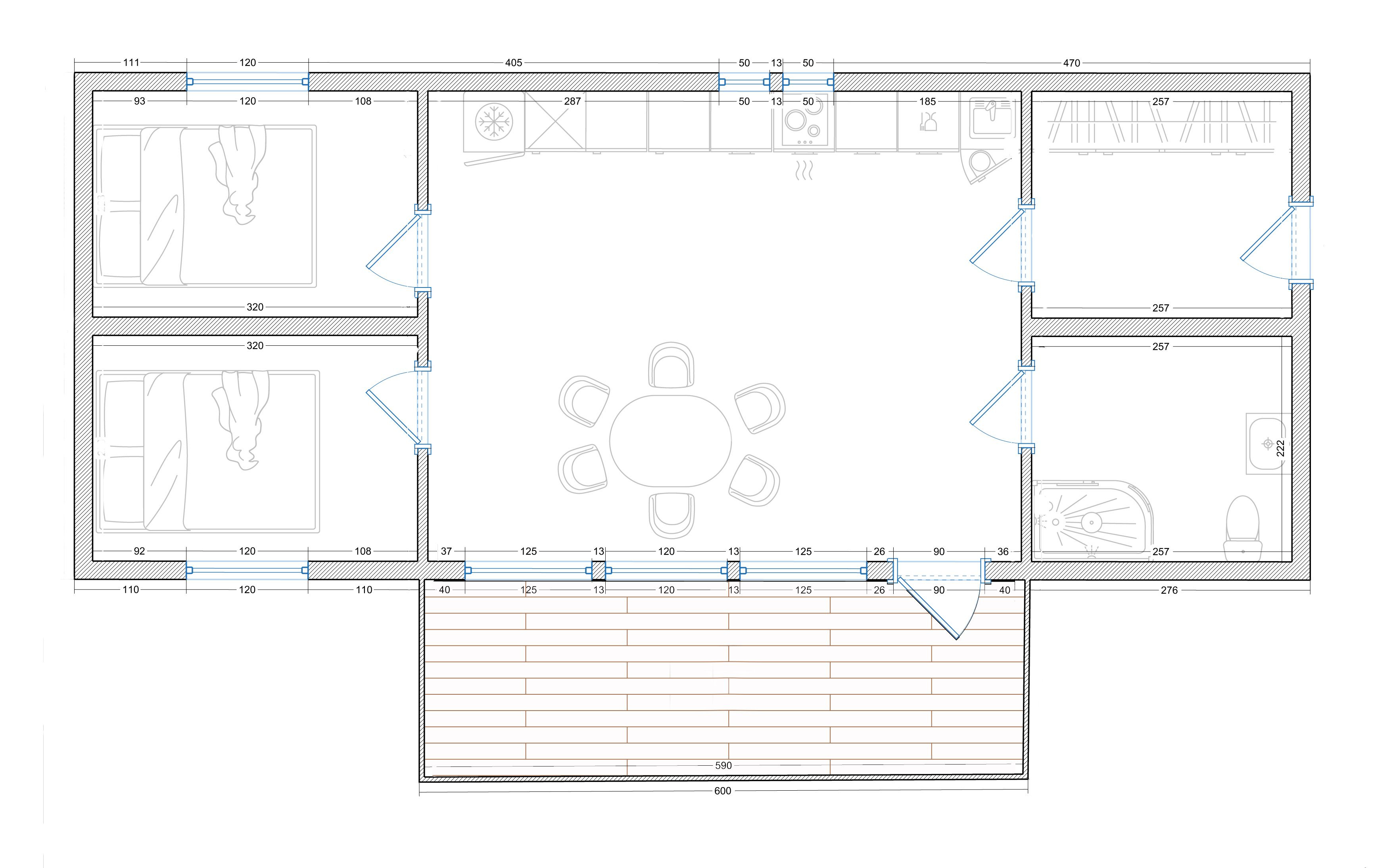
На фото дом состоящий из двух 40 футовых морских контейнера.
Площадь 58 м. кв. Отделка Планкеном из лиственницы. Возможна любая друга отделка.
В базовой комплектации есть всё как на фото. Но возможно изготовление без отделки или без мебели.
Давайте же разберемся какие есть ПЛЮСЫ домов из морских контейнеров
Надежно - Не ржавеет. Не разрушается. Не гниет. Не протекает. Его не грызут мыши. В нем не будет сквозняков. Не треснет и не перекосится. Выдержит температуры от -40 до +40 градусов. С ним вообще ничего не произойдет!
Разумно–1. Не требует регистрации в БТИ. 2. НЕ требует согласований и разрешений на установку. 3. Не подлежит налогообложению, как капитальное строительство. 4. Может быть размещен на землях Лес Фонда.
Экономно - Невероятно Богатая комплектация за эти деньги. Есть вся разводка:Воды. Электричества. Канализации. Сантехника. Газовая плита. Отопление. Теплый пол. Кондиционер. Вентиляция. Wi-Fi. Полная отделка класса Люкс. Мебель. Дома из контейнеров морских под ключ это всегда все удобства в базовой цене!
Комфортно - в таком доме будет прохладно летом и тепло зимой. За счет грамотного утепления, правильного отопления и продуманной вентиляции.
Доступно –модульный дом из морского контейнерасо всеми коммуникациями и отделкой обходится выгоднее, чем любые другие варианты постройки брус, каркас и т.д. Если считать с полной отделкой и мебелью, он вообще стоит в два раза дешевле любого другого предложения.
Разумно - сервисное обслуживание прописано в договоре. Гарантия 2 года. И это не просто красивые слова.
Быстро – от 7 до 30 дней и дом у вас на участке.Без головной боли и переживаний.
Красиво - круто выгляди в любой локации! 20 вариантов планировок плюс в этом месяце для Вас бесплатный дизайн-проект.
Безопасно - трубы не перемерзнут в самые суровые морозы. Кровля никогда не протечет – это невозможно.
Экологически чисто – все контейнеры проходят проверку дважды при закупке морского контейнера и в вашем присутствии повторно.
Выгодно –до конца этого месяца Вы экономите до 30%. Даем скидку 300.000 руб. (подробности у менеджера)
Без сюрпризов - сумма не вырастет во время строительства!
Разумно - Вы просто получаетеГотовый дом БЕЗ СТРОЙКИ за 30 дней со 100% гарантией, с ремонтом и качественной мебелью.
Просторно – каждый дом и имеет предусмотренную возможность для увеличения площадей.
Доставляется на любой труднодоступный участок.
Ликвидно в будущем – легко можно продать как машину, человеку из любого города России.
И САМОЕ ГЛАВНОЕ ЭТО:
Готовый дом БЕЗ СТРОЙКИ!
За 30 дней со 100% гарантией от 1.95 млн. рублей
И мы не посредники - Изготавливаем на собственном производствеЗАКАЗАТЬ У НАС ПРОСТО
1 рассчитаем стоимость - с точностью до копейки.
2 Оформим договор – после чего сумма не измениться и все гарантии вступят в силу.
3 Вышлем вам проект фундамента с пояснениями - Расскажем, как подготовить участок.
4 Изготовим дом – в течении 30 дней (за это время вы как раз успеете подготовить участок)
5 Приедем в Ваш регион и установим ваш дом - Ставим дом на фундамент. Устанавливаем кондиционер. Подключаем все коммуникации.
==========================================================
Изготовление дома возможно в трех вариантах:
- без отделки (под отделку) - контейнер утеплен, с окнами и разводкой электрики, водоснабжения и канализации.
- с отделкой – всё кроме мебели и бытовой техники.
- под ключ - со всем оборудованием, бытовой техникой и мебелью и пр. вплоть до Wi-Fi.* На фото представлен дом площадью 58 м2 с отделкой планкеном из лиственницы.
-
Габаритные размеры Внешняя отделка Внутренняя отделка Утепление Пол Окно Дверь
Купить 1 клик -
Добавить отзыв







